1155 E Adobe Way, Palm Springs, CA 92262
Victoria Park / Vista Norte (click for neighborhood info)
Contact me about this home
Overview
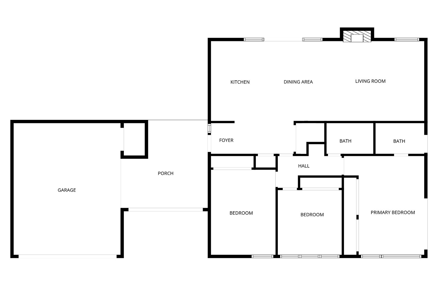
Floor plan
View floor plan
MLS #
26649723PS
Listed on
2026-02-11
Status
Active
Price
$1,250,000
Type
Residential
Subtype
Single Family Residence
Size of home
1,225 sq ft
Beds / Baths
3 / 2.00
Size of lot
12,197 sq ft
Neighborhood
Victoria Park / Vista Norte
Location address
1155 E Adobe Way
Palm Springs 92262
Palm Springs 92262
Video
Description
Believed to be one of the last Alexander-built butterfly roof homes constructed in Racquet Club Estates in 1962, this impeccably restored mid-century modern residence is a rare Palm Springs offering. Set on one of the largest lots in the neighborhood and enjoying coveted full southern exposure, the home delivers an exceptional modern desert lifestyle. Originally designed by Palmer & Krisel in the late 1950s, the iconic floor plan has been thoughtfully restored to honor its post-and-beam architecture, soaring clerestory windows, and clean modern lineswhile seamlessly adapting to today's living standards. The residence offers three bedrooms and two spa-inspired baths, complemented by a sleek European-style kitchen with quartz countertops and stainless steel appliances. Polished white porcelain floors and a striking block wall fireplace complete the refined interior aesthetic. Outdoors, the property truly shines. A sprawling resort-style pool and in-ground spa anchor the expansive grounds, joined by a bocce ball court, gazebo with fire pit, and meticulously designed desert landscaping. Wraparound mountain views and effortless indoor-outdoor flow create a setting ideal for both everyday living and entertaining. Recent upgrades include a newly coated foam roof, updated plumbing, refreshed pool systems, an on-demand water heater, and dual-pane windows throughout. Rare, iconic, and impeccably maintained, this is a home that must be experienced in person to be fully appreciated. Contact the listing agent to arrange a private showing.
General Information
Original List Price
$1,250,000
Price Per Sq/Ft
$1,020
Furnished
No
Land Type
Fee
Land Lease Expires
N/A
Pool
Yes
Pool Description
Heated with Gas, Heated, Private
Spa
Yes
Spa Description
Heated, Heated with Gas, Hot Tub
Style
Alexander, Mid-century Modern, Architectural, Butterfly, William Krisel
Year Built
1962
Levels
One
View
Pool, Mountains
Flooring
Tile, Mixed, Carpet
Appliances
Gas, Microwave
Laundry
In Closet, Inside
Fireplace
Yes
Heating Type
Central
Cooling Type
Central
Parking Spaces
2
Parking Type
Garage - 2 Car
Courtesy of:
Alex Dethier /
BD Homes-The Paul Kaplan Group
1155 E Adobe Way